Computer Aided Design (CAD) in Shipley

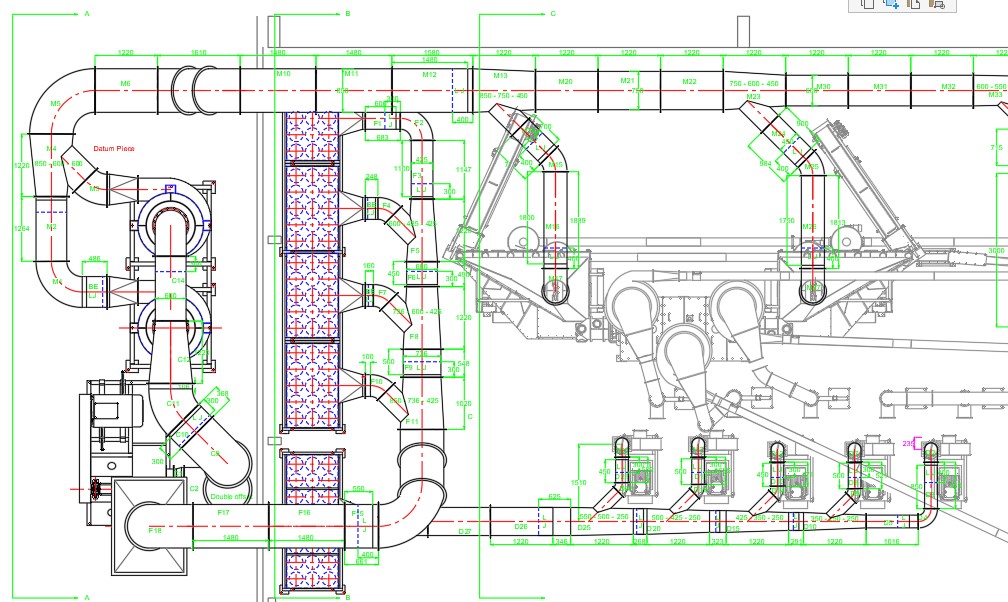
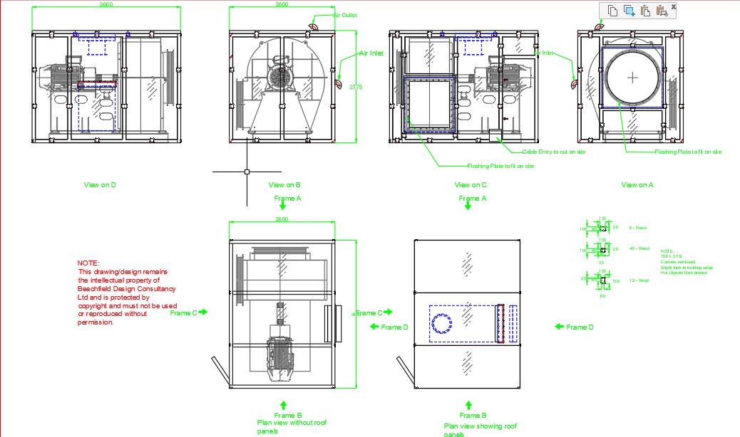
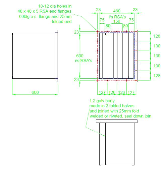
At D&E Metal Fabrications Ltd you can rely on the expertise of our office staff to bring your project to life in 2D or 3D using CAD software. We have over 25 years’ experience in drafting and technical drawing. All our fabrication work is produced from drawings ensuring consistency and accuracy.

We are based in Shipley, but can supply drawings across the North of England.

Our CAD services include:

Simple line drawings to full factory layouts, structural drawings, notching and welding details, truss arrangements, ducting, gates and railings, tables, trolleys, silencers and acoustic enclosures all drawn using CAD to ensure accuracy.

Whatever your needs, from a simple line drawing to a full factory layout we design and draft what you require at affordable prices.
Call us now on 01274 532 410